Душевая кабина 100 на 80 см: модификации и установка
Сходу направляться подчернуть, что размеры душевой кабины 100х80 см разрешают устанавливать её не только в частных зданиях, где больше простора, но кроме того в раздельных санузлах малогабаритных квартир многоэтажных зданий. Вследствие этого такие ограждения для помывки возможно назвать универсальными, тем более что при их изготовлении допускаются разные модификации в виде трансформации формы (овал либо прямоугольник) и материалов для перегородки.


на данный момент мы попытаемся подробнее раскрыть эту тему и в дополнение продемонстрируем вам тематическое видео в данной статье.
Душевые ограждения
Материалы, модификации, поддоны

- Начнём с того, что такие конструкции для принятия душа не обязательно бывают угловыми, другими словами, для угла употребляется форма полуовала либо кроме того полуразвёрнутого веера – это существенно экономит место в помещении, а в самой кабинке появляется возможность применять фактически всю площадь – там нет углов. Но ограждение для того чтобы рода может кроме этого быть и посредине стены, другими словами, примыкание будет осуществляться лишь к одной плоскости – вот тут то и необходимы квадратные и прямоугольные конструкции и не смотря на то, что их цена фактически однообразна – монтаж пара отличается.
- Ещё одно отличие пребывает в подвижных и неподвижных панелях, каковые смогут быть из калёного стекла либо пластика – это сопутствует своим преимуществам и недостаткам, присущим тому либо иному материалу. Так, стекло, в силу его плотной структуры, возможно мыть любыми химическими средствами, кроме того с абразивными добавками, не смотря на то, что для этого, в большинстве случаев, употребляется оконный склиз и средства для мойки окон и зеркал. Проблема заключается в том, что стеклянные ограждения, не обращая внимания на каление, всё-таки остаются стеклом, другими словами, хрупким материалом, а время от времени случается такое, что на заводе панель перекаливают, и хрупкость существенно возрастает – более всего это отражается при транспортировке.
- Более надёжен в отношении механической прочности прозрачный и матовый пластик – разбить его не так-то просто, но его пористая структура загрязняется микроэлементами, каковые нереально очистить, в следствии чего ограждение теряет свою изначальную привлекательность. Помимо этого, инструкция категорически не рекомендует применять для чистки пластиковых душевых панелей моющие средства с абразивными элементами и, тем более, химически активные жидкости.

- Панели у кабинки смогут быть, как прозрачными, так и матовыми либо тонированными, что делает фактически невидимой наготу моющегося там человека. Не смотря на то, что в последнее время промышленность отдает предпочтение прозрачным ограждениям, матовые панели всё равняется востребованы на рынке сантехники. Это неудивительно, поскольку в малогабаритных квартирах, где санузел совместный, время от времени приходится применять его также совместно, другими словами и кабинку, и унитаз, так что непрозрачность тут весьма кроме того выручает.

- Поддоны смогут быть железными и акриловыми, небольшими и глубокими – выбор больше зависит от объёма – это возможно решающим причиной. К примеру, глубочайший поддон для душа оптимален чтобы в нём купать ребёнка либо полоскать бельё, кроме этого там имеется сиденье, где возможно присесть на протяжении мытья. Но, иначе, пожилому человеку либо калеке очень сложно, а иногда кроме того нереально преодолеть препятствие – человек просто не может так высоко поднять ногу.
Монтаж
Примечание. В тех случаях, в то время, когда монтируется угловая кабинка, угол, предназначенный для монтажа должен иметь ровно 90?. В случае если будет отклонение хотя бы на 1?, между поддоном и стеной появляется зазор и чем больше отклонение, тем больше щель и она доходит до критической, другими словами её уже нереально заделать. Само собой разумеется, существуют методы, такие, как подрезка плитки, но это только для умелых мастеров.

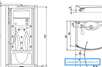
Начнём с того, что размеры душевой кабины в ванну 100х80х210 мм (Д/Ш/В) также смогут быть различными, другими словами, тут изменяется протяженность и ширина, исходя из этого, при покупке ограждения вам необходимо понимать, в какую сторону вероятно пускай 100 см, а в какую – 80. На поддон, посредством крестовины, прикручиваются ножки, каковые вам в обязательном порядке необходимо отрегулировать по уровню, пока поддон будет в перевёрнутом состоянии.
Затем поддон в угол и удостоверьтесь в надежности его уровнем ещё раз – при необходимости вкручивая либо выкручивая ножки для выравнивания. К стенке его оптимальнее крепить на силиконовый герметик.

После этого собираете железный каркас под перегородки, но там каркас должен вставляться в направляющие (см. фото вверху), каковые со своей стороны, строго вертикально фиксируются к стенке (с подмазкой силикона) по углам поддона .

Вне зависимости от материала (стекло либо пластик) душевая кабина 800х1000 мм имеет подвижные и неподвижные панели. Сперва вставляются и фиксируются глухие страницы, причем, на любой из них, на вертикальные края, надевают пластиковые прокладки – та, которая со стороны дверок – с фартуком.
После этого, при помощи двух пар колёс (вверху и внизу) навешиваются дверки – нижняя пара регулируется уже по окончании навешивания (там имеется эксцентрики), а на место створа, для плотного прилегания, надеваются магнитные полосы.
Совет. По окончании завершения монтажа кабинки в обязательном порядке нанесите полосу силикона между стенкой и поддоном. После этого проведите по ней пушкой пальца для декорации – это будет одновременно и стоком, и украшением.
Заключение
Монтаж душевой кабины своими руками не воображает особенной сложности, в случае если наряду с этим вы имеете ровные стенки и пол, и угол 90?. Но, однако, не пренебрегайте управлением от завода-изготовителя – в каждой модели смогут быть какие-либо определённые нюансы установки.